
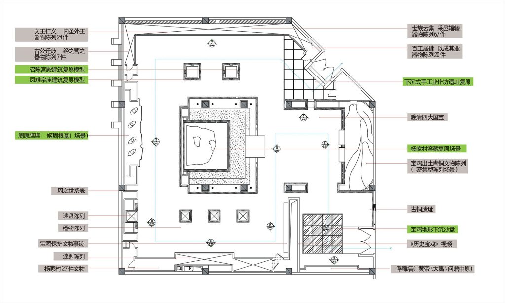
作为青铜器之乡的宝鸡,以窖藏众多最为特色。第一展厅通过大量窖藏出土青铜器的展示,展现宝鸡青铜器之盛。展厅面积606平方米,共展出文物260件。分为杨家村文物陈列展区、宝鸡其他青铜器文物展区、青铜器之乡主题陈列区和周之溯源板块四个部分,通过青铜器的展示将这一伟大时代浓缩在同一个空间之中。展览从出土文物的数量多”、历史久”、铭文精”三个方面,展现宝鸡青铜器之盛,全面阐释了宝鸡青铜器之乡”美誉的由来。






现在的位置:
作者:
发布日期:

作为青铜器之乡的宝鸡,以窖藏众多最为特色。第一展厅通过大量窖藏出土青铜器的展示,展现宝鸡青铜器之盛。展厅面积606平方米,共展出文物260件。分为杨家村文物陈列展区、宝鸡其他青铜器文物展区、青铜器之乡主题陈列区和周之溯源板块四个部分,通过青铜器的展示将这一伟大时代浓缩在同一个空间之中。展览从出土文物的数量多”、历史久”、铭文精”三个方面,展现宝鸡青铜器之盛,全面阐释了宝鸡青铜器之乡”美誉的由来。




(以上内容仅限于公益宣传,个别图片和视频资料来自网络,如有侵权,联系必删)